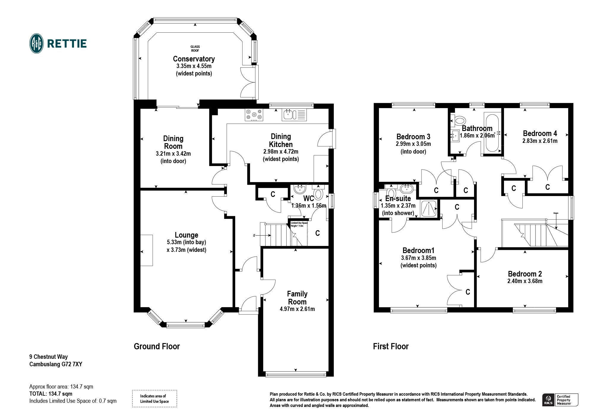
02
Kirk Street
A quite unique and charming main door mews style house within a “B” Listed building in the heart of the conservation market town of Strathaven. Sure to suit a range of parties including first time buyers, downsizers and landlord buy to let clients.
The accommodation is formed over one level and comprises: main door entrance to a good size lounge, fitted kitchen with freestanding cooker with double oven, 4 ring gas hob, hood, fridge/freezer and Belfast sink as well as a door to the rear. Inner hallway with storage, double bedroom, bathroom with electric shower over bath and curved glass shower screen.
The specification includes gas central heating (installed 2018) and double glazing. The loft area is substantial is accessed by way of a pull down ladder and has a light installed. The loft is mainly floored and is currently used for storage but it should be noted that it could be developed to create a mezzanine level.
There is parking within the shared courtyard (not an allocated space) and there is a shared rear courtyard, accessed from the kitchen.
Strathaven offers a host of local amenities including essential shops, restaurants and pubs as well as craft shops. East Kilbride is circa 8.5 miles away and Hamilton circa 8 miles away.