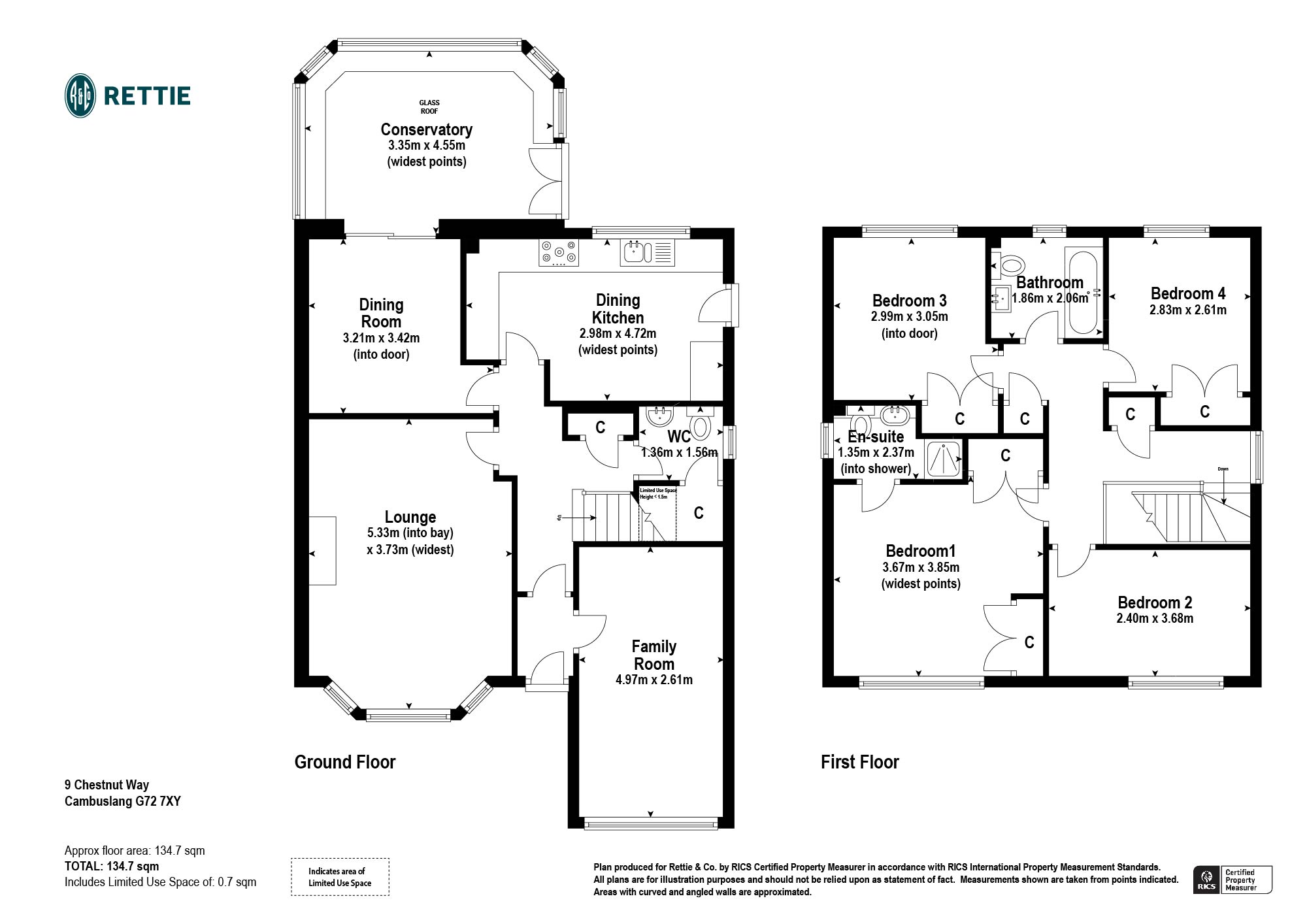
91 Chestnut Way, Cambuslang, Glasgow, G72 7XY

Offers over £500,000
1 2 3

Description

Home Branch

4 Woodside Place
Glasgow , G3 7QF

07833 564331 innes@home-west.verticaldev.org

Request A Callback

    Request A Viewing

      Property Detail

      Floorplan

      similar
      properties.